Die anhängerkupplung ist von fachpersonal nach eventuellen zusätzlichen und/oder ergänzenden, vom hersteller der vorrichtung ausgehändigten anleitungen an die karosserie montieren zu lassen.
Die einzubauende anhängervorrichtung muss den aktuell gültigen normen mit bezug auf die eg-richtlinie 94/20 und den nachträglichen veränderungen entsprechen.
Für jegliche version ist eine für die anhängelast des fahrzeugs, an dem der einbau erfolgt, geeignete anhängevorrichtung zu verwenden.
Für die elektrische verbindung ist eine auf einem bügel befestigte genormte steckverbindung zu verwenden. Der bügel wird gewöhnlich an der anhängevorrichtung selbst befestigt.
Im fahrzeug muss ein spezielles steuergerät für den betrieb der außenleuchten des anhängers installiert werden.
Für die elektrischen verbindungen sind 7- oder 13- polige steckverbindungen mit 12v gleichstromversorgung zu verwenden (normen cuna/uni und iso/din) und die eventuellen hinweise des fahrzeugherstellers und/oder herstellers der anhängevorrichtung zu beachten.
Eine eventuelle elektrische bremse oder andere einrichtungen (elektrische seilwinde usw.) Sind mit einem kabel mit mindestens 2,5 mm2 querschnitt direkt über die batterie zu speisen.
Zur beachtung die benutzung der elektrischen bremse oder einer eventuellen seilwinde muss bei laufendem motor erfolgen.
Zuzüglich zu den elektrischen abzweigungen darf an die elektrische anlage des fahrzeugs nur das kabel zur versorgung einer evtl. Elektrischen bremse und das kabel für die lampe von höchstens 15w zur innenbeleuchtung des anhängers angeschlossen werden.
Für die verbindungen sind der vorgesehene verteiler und ein batteriekabel mit mindestens 2,5 mm2 querschnitt zu verwenden.

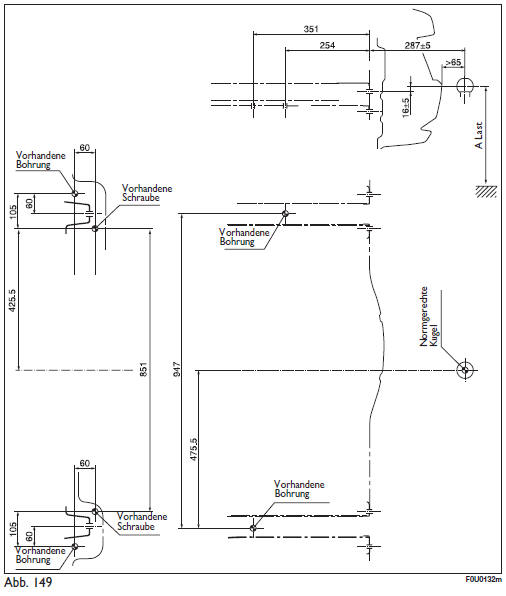
Einbauschema abb. 149
Die struktur der anhängerkupplung
ist an den durch
gekennzeichneten
stellen mit insgesamt 6 schrauben m10
zu befestigen.
Die gegenplatten müssen eine dicke von mindestens 6 mm haben.
Die anhängerkupplung ist so an der karosse zu befestigen, dass bei abgenommener anhängerkupplung keine bohrungen an der hinteren stoßstange sichtbar sind.
Zur beachtung es ist vorschrift, auf gleicher höhe mit dem kugelkopf ein (gut sichtbares) schild angemessener größe und aus geeignetem material mit folgender angabe anzubringen: max. Last auf der kugel 60 kg
Zur
beachtungNach der montage sind die schraubenlöcher zu versiegeln, um eventuelles eindringen von abgasen zu verhindern. |
Störungsdiagnose anlasser
Wenn sich das anlasserritzel nicht dreht, ist zunächst zu prüfen,
ob an der klemme 50 des magnetschalters die zum einziehen
benötigte spannung von mindestens 10 volt vorhanden
ist. Liegt die spannung unter dem genannten wert, dann
müssen die leit ...
Fahrzeug aufbocken
Für viele wartungs- und reparaturarbeiten muss das fahrzeug
aufgebockt beziehungsweise hochgehoben werden. In
der werkstatt wird der wagen in der regel mit der hebebühne
angehoben, man kann ihn jedoch auch mit dem fahrzeug*
oder werkstatt-wagenheber anhebe ...